-
Электронная почта
market09@aolipump.com
-
Телефон
13661648777
-
Адрес
Шанхайский район Цзядин, улица Хуэйванг, 1888.
& quot; Олли механик (груп) лтд. & quot;
market09@aolipump.com
13661648777
Шанхайский район Цзядин, улица Хуэйванг, 1888.
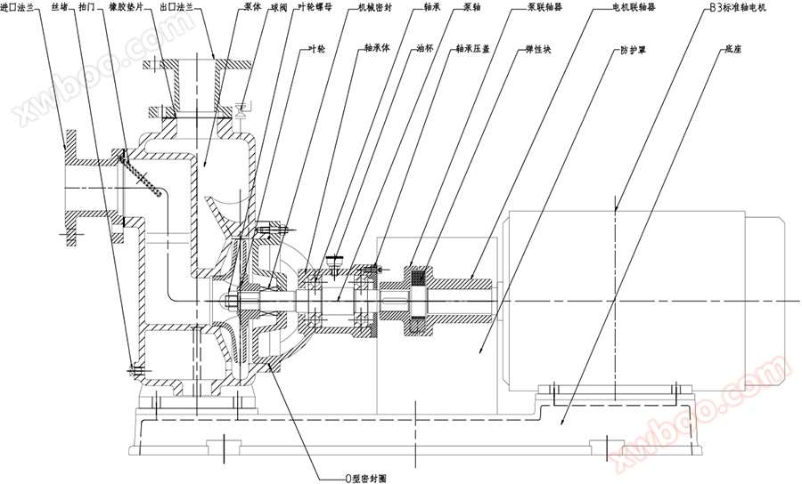
Самовсасывающий насос серии ZX, производимый нашей организацией, является энергосберегающей насосной продукцией, разработанной после поглощения, переваривания и улучшения соответствующей технической информации в Китае и за рубежом. Насос является самовсасывающим центробежным насосом, он имеет преимущества компактной конструкции, удобной эксплуатации, плавной работы, простого обслуживания, высокой эффективности, длительного срока службы и имеет сильную способность к самовсасыванию. В трубопроводе не нужно устанавливать нижний клапан, перед работой просто убедитесь, что в насосе хранится количественная жидкость. Это упрощает систему трубопроводов и улучшает условия труда.
1
Применяется для городской охраны окружающей среды, строительства, пожаротушения, химической, фармацевтической, красителей, печати и окраски, пивоварения, электричества, гальванического покрытия, производства бумаги, промывки и полива промышленных руд, охлаждения оборудования и так далее.
2
После установки рычажного сопла, но также и вода может быть смыта в воздух, разбросана в мелкие капли дождя для распыления, является хорошим оборудованием для фермы, питомника, сада, чайного сада.
3
Применяется для очищенной воды, морской воды и химических диэлектрических жидкостей с кислотностью и щелочностью, а также для суспензии с общей пастой (вязкость среды составляет менее 100 л.пер, содержание твердости до 30%).
4
Может использоваться в комплекте с любым типом и спецификацией фильтра, сера подается в фильтр для фильтрации под давлением идеального комплектующего типа насоса.
